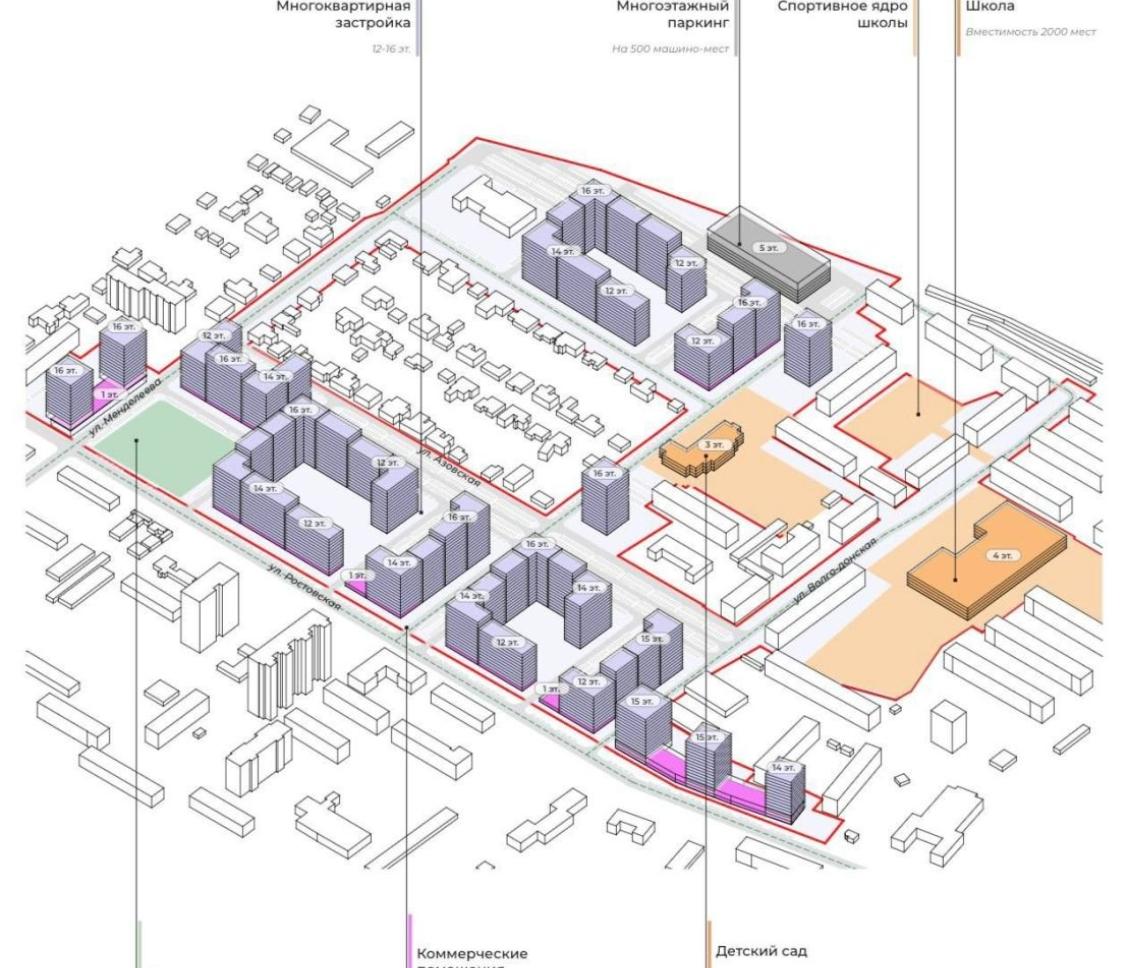
В районе улиц Ростовская и Менделеева на левом берегу Воронежа планируется построить многоэтажный жилой комплекс с безмашинными дворами и многоэтажным паркингом на месте ветхих домов.
Проект благоустройства территории площадью 25 гектаров уже согласован архитектурной комиссией. По словам руководителя бюро «ПАСП» Андрея Тютерева, жилые дома переменной этажности (от 12 до 16 этажей) будут иметь дворы, свободные от автомобилей. Для размещения транспорта жителей предусмотрено строительство многоэтажной парковки на 500 машиномест. В рамках комплексного развития территории также запланирована реконструкция местной школы и дополнительное озеленение улиц Менделеева и Ростовской.
Как отметил заместитель председателя правительства Воронежской области Константин Кузнецов, дальнейшая работа над проектом будет вестись в рамках регионального штаба по комплексному развитию территорий. Предстоит проработать вопросы социальной и инженерной инфраструктуры, синхронизировать сроки реализации и рассмотреть планы по развитию прилегающих территорий. Перед вынесением проекта на градостроительный совет необходимо завершить разработку его экономической модели.