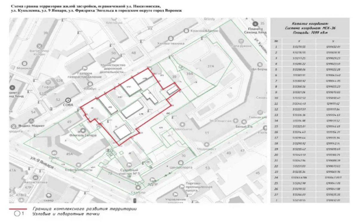
Администрация города объявила аукцион на право комплексного развития территории (КРТ) в границах улиц Никитинская, Куколкина, 9 Января и Фридриха Энгельса.
Площадь участка — около 7,1 тысячи квадратных метров. Начальная цена — 23,1 миллиона рублей. Шаг аукциона — примерно 1,16 миллиона рублей, задаток равен стартовой цене.
По условиям, на этом месте планируется строительство многоквартирных домов высотой от двух до семи этажей с подземной парковкой. Поскольку территория находится в исторической части города, застройщик обязан вписать новый комплекс в сложившийся архитектурный облик и сохранить объекты, представляющие историческую ценность.
Заявки на участие принимаются до 14 апреля, торги назначены на 20 апреля.